If you were to search an atlas gazetteer for Locarno, you would discover it to be an Italian-speaking resort city in southern Switzerland on Lake Maggiore at the base of the Alps. There is also a Locarno Lane in Gordon Head off Arbutus Road near Hollydene Park.

But it was a property named Locarno in Oak Bay that is relevant to the history of GNS. This is a property that no longer exists, except for the stone wall and gate posts at the rear entrance.

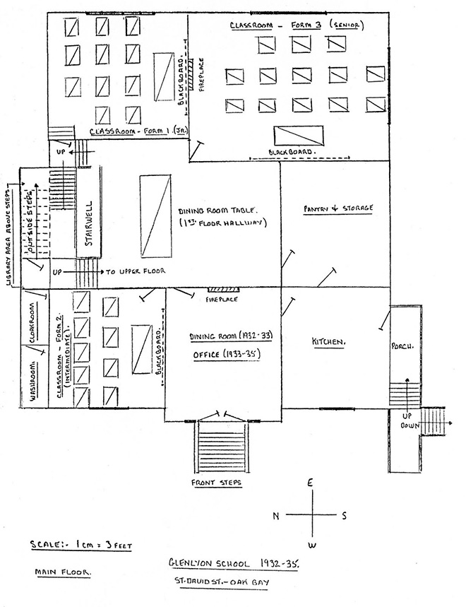
1377 St. David Street was the property where Major Ian Simpson rented as the site of his new school, Glenlyon Preparatory School, from September 1932 to June 1935. Coincidentally, this property had been rented by Norfolk House School as a boarding house between 1925 and 1932 while their main classrooms were on Granite Street.
With their new home at Pemberton Woods as of the spring of 1932, St. David Street was too far away and preferred boarding facilities were rented closer to their new school site.The property had two access points – the front entrance of 1377 St. David Street and a rear entrance at the corner of Transit Road, formerly St. James Street, and Newport Avenue. It was this rear entrance where Locarno was etched into the rock gate posts and became the main access for many students attending the first three years of Glenlyon.

In fact, it was a small group of them who returned 60 years later to reminisce about those former days. Paul Parizeau, second from left, created a wonderful description of those times and drawings of the inside and the outside of the property. See the drawing below.




